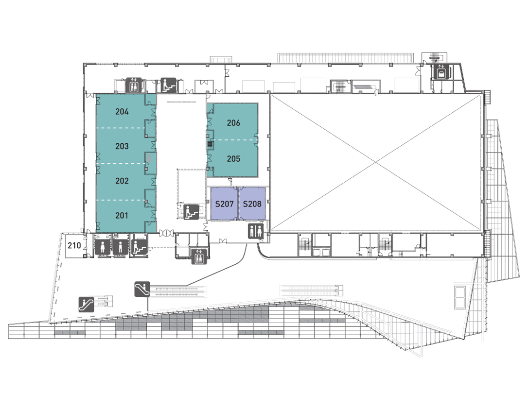
2F
회의장
| 회의실명 | 면적 (m²) | 규격 (실제사용) | 수용인원 (명) | |||
|---|---|---|---|---|---|---|
| 가로×세로 (m) | 높이 (m) | 극장식 | 강의식 | 연회식 | ||
| 201, 202, 203, 204 | 141 | 16.3×9.6 | 4.5 | 130 | 78 | 70 |
| 201+202, 203+204 | 282 | 16.3×19.2 | 4.5 | 260 | 156 | 140 |
| 201+202+203, 204+203+202 | 423 | 16.3×28.8 | 4.5 | 390 | 234 | 210 |
| 201+202+203+204 | 564 | 16.3×38.4 | 4.5 | 520 | 312 | 280 |
| 205, 206 | 131 | 13.8×10.2 | 4.5 | 120 | 72 | 60 |
| 205+206 | 262 | 13.8×20.4 | 4.5 | 240 | 144 | 120 |
| S207, S208 | 80 | 8.7×9.3 | 3.9 | S207 : VIP 대기용 소파 14개 비치 S208 : 'ㅁ'자형 테이블 비치 및 회의용 의자 14개 비치 |
||
| 면적 (m²) | 규격 (실제사용) | 수용인원 (명) | |||
|---|---|---|---|---|---|
| 가로×세로 (m) | 높이 (m) | 극장식 | 강의식 | 연회식 | |
| 141 | 16.3×9.6 | 4.5 | 130 | 78 | 70 |
| 면적 (m²) | 규격 (실제사용) | 수용인원 (명) | |||
|---|---|---|---|---|---|
| 가로×세로 (m) | 높이 (m) | 극장식 | 강의식 | 연회식 | |
| 282 | 16.3×19.2 | 4.5 | 260 | 156 | 140 |
| 면적 (m²) | 규격 (실제사용) | 수용인원 (명) | |||
|---|---|---|---|---|---|
| 가로×세로 (m) | 높이 (m) | 극장식 | 강의식 | 연회식 | |
| 423 | 16.3×28.8 | 4.5 | 390 | 234 | 210 |
| 면적 (m²) | 규격 (실제사용) | 수용인원 (명) | |||
|---|---|---|---|---|---|
| 가로×세로 (m) | 높이 (m) | 극장식 | 강의식 | 연회식 | |
| 564 | 16.3×38.4 | 4.5 | 520 | 312 | 280 |
| 면적 (m²) | 규격 (실제사용) | 수용인원 (명) | |||
|---|---|---|---|---|---|
| 가로×세로 (m) | 높이 (m) | 극장식 | 강의식 | 연회식 | |
| 131 | 13.8×10.2 | 4.5 | 120 | 72 | 60 |
| 면적 (m²) | 규격 (실제사용) | 수용인원 (명) | |||
|---|---|---|---|---|---|
| 가로×세로 (m) | 높이 (m) | 극장식 | 강의식 | 연회식 | |
| 262 | 13.8×20.4 | 4.5 | 240 | 144 | 120 |
| 면적 (m²) | 규격 (실제사용) | 수용인원 (명) | |||
|---|---|---|---|---|---|
| 가로×세로 (m) | 높이 (m) | 극장식 | 강의식 | 연회식 | |
| 80 | 8.7×9.3 | 3.9 | S207 : VIP 대기용 소파 14개 비치 S208 : 'ㅁ'자형 테이블 비치 및 회의용 의자 14개 비치 |
||




